Fan House

Ristrutturazione di appartamento

TEAM

Arch. Irene Innocenti
Progettazione e direzione lavori architettonica

Ing. Giacomo Barcaioli
Coordinatore della sicurezza

CATEGORIA

Ristrutturazione-restyling

ANNO

2018

Fan House

Ristrutturazione di un appartamento a Firenze

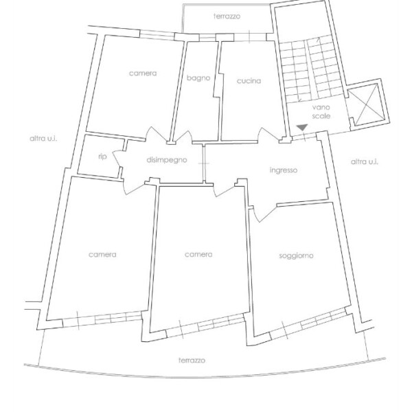
L’appartamento in oggetto fa parte di un condominio di cinque piani progettato e realizzato alla fine degli anni ’50. L'edificio ha una planimetria molto particolare che si apre ai raggi del sole come un ventaglio, accogliendo la luce naturale dalla mattina alla sera. I nostri clienti hanno scelto questa casa proprio per questa fantastica luce e per la terrazza che segue con la sua curvatura tutta la facciata principale.

Ristrutturazione di un appartamento a Firenze

focus /apertura zona giorno

Uno degli obiettivi principali era quello di recuperare gli spazi di distribuzione in favore della nuova zona giorno, eliminando le pareti divisorie e favorendo la diffusione della luce naturale nell’ambiente.

focus /pezzi di viaggio

La committenza ha portato con sé un bagaglio di ricordi di una vita e di oggetti prevenienti da tutto il mondo che hanno trovato il loro posto nella nuova dimora. Ogni ambiente come ogni piccolo oggetto caratterizzano l’appartamento in modo unico: dalla camera Van Gogh al tropical bath, l’appartamento è un vero e proprio viaggio, in un continuo gioco di contrasti e scoperte.

focus /il secondo bagno

È stato ricavato un secondo bagno al posto del ripostiglio ed è stato sapientemente illuminato da faretti e led incassati. Lo spazio ad uso ripostiglio è stato comunque ricavato nella zona centrale dell’appartamento.

focus /spazi su misura

la libreria della zona giorno è stata progettata su misura, studiando minuziosamente i moduli per contenere dischi, televisione e una simpatica collezione di sveglie. Il colore arancione richiama i decori sulla pietra lavica del rivestimento della cucina e la finitura lucida crea degli interessanti riflessi.

focus /cantiere

Alcune foto durante i lavori.

focus /prima dei lavori

L’appartamento non era mai stato ristrutturato, pertanto le finiture erano quelle originali degli anni 50’. Gli spazi di distribuzione erano troppo ampi e non illuminati e la carta da parati in tutte le stanze faceva sembrare gli spazi più piccoli e angusti.

Vai al progetto precedente
Vai al progetto seguente

/Info

Parlaci del tuo progetto, costruiamolo insieme.